BINGA — In a district where hunger drives thousands of children out of school and most households lack basic sanitation, a luxury four-bedroom house with a jacuzzi is nearing completion on the shores of Lake Kariba, built at public expense for the long-serving chief executive of one of Zimbabwe’s poorest local authorities.
An investigation by CITE reveals that Binga Rural District Council (RDC) has spent close to US$200 000 constructing a “grace-and-favour” home for its chief executive officer, Joshua Muzamba, despite a standing government directive prohibiting local authorities from building personal residences for senior officials.
The development has ignited questions about governance, accountability and political protection in a district consistently ranked among Zimbabwe’s poorest, and where residents say public resources are routinely diverted from desperately needed services.

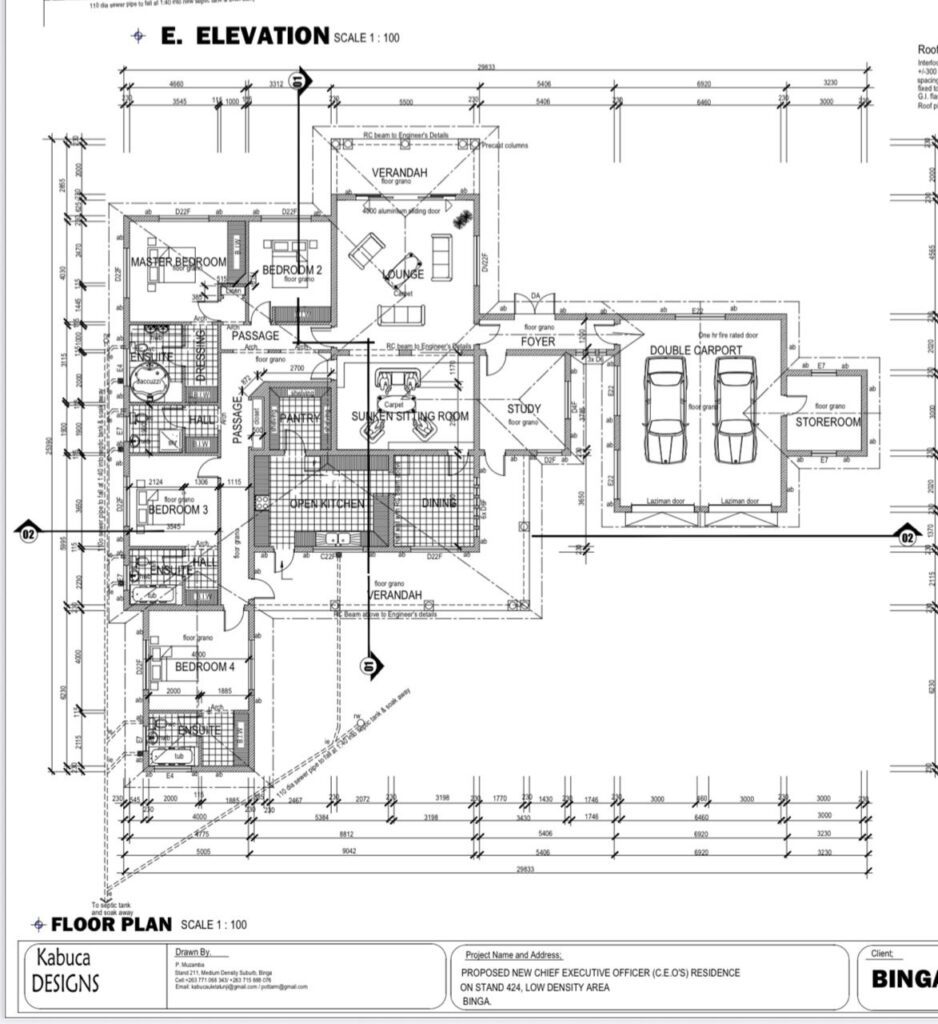
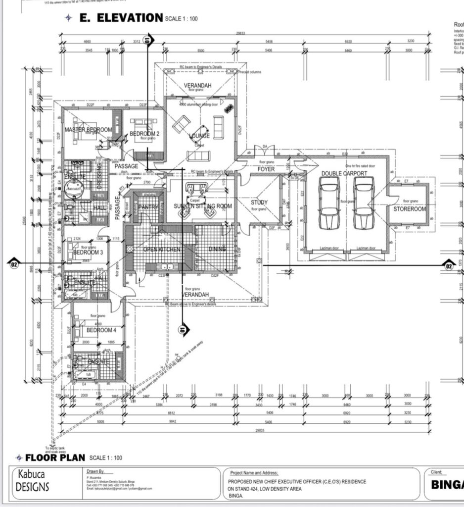
The house sits on a two-acre stand overlooking Lake Kariba, in an exclusive peninsula neighbourhood about six kilometres from Binga town, surrounded by water on two sides.
Council records and sources familiar with the project say the stand, valued at over US$40 000, was allocated to Muzamba free of charge. The property includes four bedrooms – three of them ensuite – a jacuzzi and two garages.

The project’s cost and scale contrast sharply with living conditions in the district.
Official statistics paint a grim picture: ZimStat data shows that 73 percent of households in Binga lack toilets, while many communities travel long distances for schools and healthcare facilities amid largely impassable roads.
Education ministry figures indicate that in 2022 alone, 6 671 pupils dropped out of school, while more than 13 000 children were irregular attendees due to hunger.
Yet despite chronic underdevelopment, council funds have been channelled into the high-end residence.
Muzamba and the council did not respond to multiple requests for comment.
A ministry of local government circular issued on October 6, 2014 (Circular CX154) explicitly forbids local authorities from allocating institutional properties to employees, mayors or council chairpersons.
The ministry’s spokesperson Gabriel Masvora confirmed the directive remains in force.
“The government’s wish is to see improved service delivery prioritised in local authorities for the benefit of the people,” Masvora said. “Local authorities are a third tier of government which have systems and controls in place to ensure resources are used effectively.”
He added that councillors should scrutinise expenditures to ensure compliance with government policy and residents’ priorities.
The Association of Rural District Councils of Zimbabwe (ARDCZ), with Muzamba as chair, passed a resolution allowing construction of houses for senior officials after 10 years of service, effectively sidestepping central government policy.
Muzamba has led Binga RDC for 14 years, a tenure marked by recurring controversies.
Fanuel Cumanzala, the MP for Binga South (CCC) describes the CEO as a dominant figure operating with little internal resistance.
“He has become a liability to Binga,” Cumanzala said. “Whatever he does is for personal gain, not for the wellbeing of the people. Councillors are afraid to go against him.”
Cumanzala alleges the CEO survives political pressure because of backing from influential figures with economic interests in the district.
Muzamba lost his position in Zanu PF’s central committee in 2018 after the Supreme Court ruled public officials could not hold multiple posts simultaneously.
Concerns over governance at Binga RDC stretch back years.
In 2018, police requested a full audit of the council after investigations into suspected theft of trust property revealed potential financial irregularities.
The then senior assistant commissioner Stephen Mutamba, now police commissioner general, wrote to the local government ministry recommending a comprehensive audit after police uncovered evidence that council employees were allegedly under-receipting cash.

The subsequent ministry audit found serious weaknesses, including: bank transfers not being recorded in cash books; rampant under-receipting; an absence of an authenticated employment policy, exposing the council to nepotism and unethical hiring practices; and unsigned council minutes, raising doubts about the authenticity of the records.


Despite these findings, residents say meaningful corrective action never followed.
Muzamba is accused of protecting one employee, Lovemore Siamuyi, who was implicated in earlier investigations and remains employed.
Current and former council insiders allege the CEO has filled the local authority with relatives, claims he has not publicly addressed.
A council official, speaking anonymously for fear of reprisals, said a previous resolution capped staff numbers at 50 due to financial constraints, leading to retrenchments.
“But soon after that, more people started being employed,” the source said. “Now the place is flooded with his kinsmen.”
Employees describe a workplace climate of fear and factionalism.
Residents also question a council resolution allowing senior officials to purchase service vehicles at book value after five years, a policy they say disproportionately benefits senior executives and their associates.
“This means residents effectively buy new vehicles every five years,” said one ratepayer.
The council is reportedly struggling with cash flow, at times paying salaries through allocations of housing stands instead of wages.
Muzamba’s critics argue that such challenges make spending on his luxury house especially difficult to justify.
The Auditor-General has previously warned that similar practices elsewhere risk undermining service delivery. In 2022, Marondera RDC was flagged after building a CEO residence using capital development funds. The Auditor-General cautioned that “service delivery may be compromised as council funds are used for unintended purposes.”
Matabeleland North Minister Richard Moyo said his office had received no formal complaints about corruption at Binga RDC.
“We haven’t received any official reports pertaining to this matter,” he said, suggesting some allegations could be politically motivated disputes between councillors from different parties.
Meanwhile, the government says a Zimbabwe Anti-Corruption Commission (ZACC) taskforce is examining corruption allegations across local authorities.
“If there are any reports made, the committee will swiftly look into the issues,” Masvora said.
The MP Cumanzala said it was particularly disheartening that communities in Binga remain trapped in poverty despite vast natural resources including Lake Kariba fisheries, forests teeming with wildlife and mineral wealth.
“Binga RDC is one of the worst run in the country in the sense that we have so much resources and a lot of potential and we receive a lot of attention from non-governmental organisations and the government itself, but those resources are being pocketed by certain people,” he said.
Support CITE’s fearless, independent journalism. Your donation helps us amplify community voices, fight misinformation, and hold power to account. Help keep the truth alive. Donate today


This is similar to Mabel Chinomona’s personal/private residence in Harare being refurbished for than 200 000Usd using public funds and the silence is deafening and an RDC CEO is caught up in the same corruption web and the silence is deafening…
ummm sister Tanaka , with the development happening in Binga, I think you need to visit our town yourself. Re-check with your source of lies. And don’t be to comfortable writing things u don’t know. It tarnishes your image for you are clearly paid to write this just to cause unnecessary drama.
ummm sister Tanaka , with the development happening in Binga, I think you need to visit our town yourself. Re-check with your source of lies. And don’t be too comfortable writing things u don’t know. It tarnishes your image for you are clearly paid to write this just to cause unnecessary drama.
Which part of the story is a lie?
Brilliant work there Moyo and Tanaka. Corruption is not only in Harare but in such remote councils as what is happening in Binga. In 1995 thereabout, I think it was ahead of CITES conference, Zimbabwe was pushing to be allowed to cull elephants to its uses proceeds from the exercise to develop locals. There was a nationwide government sponsored tour of areas suffering from heavy population of elephants and show the media (and by extension the world) how local councils are culling elephants for the benefit of local communities. In Binga, the money from trophies and meat culled from elephants was allegedly being used to build clinics and boreholes. It was an interesting narrative. Excited by the presence of international journalists (I was considered international since I was coming from Bulawayo not Old Pumula where hail), the then Binga CEO ( he was very popular with my Chronicle colleagues), unwittingly said: We ( Binga executive) eat on behalf of the poor.
I went back in 2000 the clinics were still at foundation level.